3/4 BHK
Ground+5
5 Acres
150
| Unit | Size | Price |
|---|---|---|
| 3 BHK + 3T | 1750 Sq.ft. | On Request |
| 4 BHK + 4 T | 2750 Sq.ft. | On Request |
| Studio Apartments | 450 Sq.ft. | On Request |
| Shop | 450 Sq.ft. | On Request |
Calista Heights is a luxury low-rise residential development within Techzone 7, Noida Extension, Calista Heights combines modern homes with natural green surroundings in 4,000 sq.m., rising to 80 units at the initial stage, which targets to offer 3 and 4 BHK apartments, studios and retail outlets to its customers as an under-construction project. Some of the facilities include a clubhouse, swimming pool, gymnasium, children's play area, jogging tracks, and landscaped gardens and are guarded by 24x7 CCTV and intercom. The quake-resistant building will consist of vitrified tiles in the living and bedroom rooms, ceramic floors in the kitchen and the bathrooms and modular fittings to add more comfort.
The gated community focuses on sustainability, which offers rainwater harvesting, solar-powered lighting, and power backup to provide a prosperous and relaxing mood that suits the needs of professionals and families. With possession expected by December 2025, it is an epitome of high-end urban living in Greater Noida West, fully equipped with indoor games, such as carrom and table tennis, to have fun. The registration of the project by RERA is transparent and quality assured.
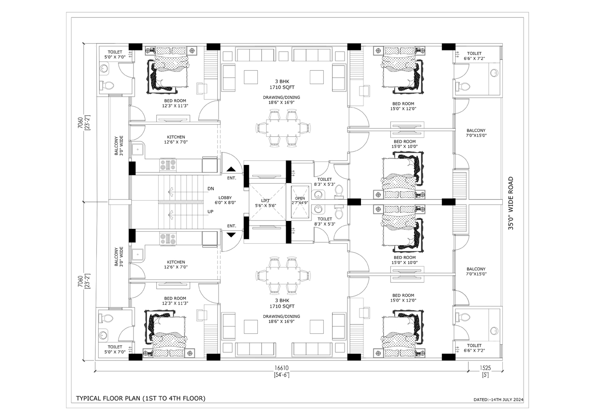
The floor plans of Calista Heights have been designed to allow spacious and convenient living in low-rise buildings of 4-5 floors with 3 BHK units of 1710 sq ft. with three bedrooms, three toilets, and wide balconies that allow natural ventilation. Such designs have modular kitchens that extend until the counter lined with ceramic tiles, vitrified flooring where there is a living and sleeping space is required and wooden door frames to offer a high-end effect. Modern appliances are supported by sufficient electric outlets and hidden wiring, and the open layout allows seamless flow between spaces, ideal for daily family interactions.
Larger 4 BHK designs go up to about 2775 sq ft. with four bedroom units, three or five toilets, and a wide terrace area in penthouse units, in case of high luxury. Studio 450 sq ft. Studios are small but lucrative, having a single room, which has a bathroom attached, perfect for young professionals seeking independence. The convenience size of the retail shops is reflected in ground-floor convenience, so that the entire project of 80 units balances its privacy, light, and utilities in every design aspect.


Located in Techzone 7, Noida Extension, Calista Heights is well-positioned with a 5-minute drive to Yatharth Hospital, which offers good healthcare and a 5-minute drive to Gaur City Centre Mall, which offers convenience to the shoppers. Trinity World School is within 3km, and ABES College is within 6km on NH-24, which serves the educational requirements. A 10-minute journey accesses the nearest Metro Station in Sector 78 to facilitate easy movement. It is well connected through NH-24 that connects Delhi, NCR, Agra, Aligarh and Meerut, and also Noida-Greater Noida Expressway and FNG Road, which makes commuting to Ghaziabad and 20 minutes to Pari Chowk. This Greater Noida West area has 12 schools, two hospitals in a 2 km range, and the Noida SEZ in its immediate vicinity, which makes it a balanced area between family needs, business centres, and fast development of infrastructure.